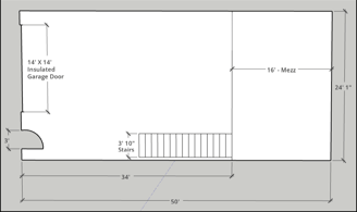
Site & Unit Plans | Diamond Garage Condos LLC




24'x50' Unit
16' Mezzanine (1,584 SQ FT)
24'x50' Unit
15' Mezzanine (1,560 SQ FT)
24'x50' Unit
12' Mezzanine (1,488 SQ FT)






Dive into the detailed layout of Diamond Garage Condos LLC with our comprehensive site and unit plans. Located in the serene environment of Cassopolis, MI, adjacent to Jefferson Park Plaza, our property offers four meticulously designed garage condos, each with unique features to cater to your lifestyle:
Contact us
Feel free to contact us with any questions. You can use the form on our website or email us directly. We appreciate your interest and look forward to hearing from you.

